deDeutsch21.11.2025
Das Planerteam um gdap architectes sàrl, Genève erreichte mit dem Projekt «ELSA» den 2. Rang im Wettbewerb «EMS Alp’Age-PSVJ». Der Entwurf setzt auf eine klare Holzbauweise und fügt das Pflegeheim stimmig in die anspruchsvolle Topografie und das umliegende Bildungs- und Gesundheitsareal ein.
© Fotos: gdap architectes sàrl, Genève
© Rendus: gdap architectes sàrl, Genève
© Visualisierung: gdap architectes sàrl, Genève
Das Projekt «Concours EMS Alp'Age-PSVJ» beinhaltete die Planung eines Pflegeheims (EMS), dessen Integration in eine bestehende Umgebung mit herausfordernder Topografie im Fokus stand. Das Ziel bestand darin, eine harmonische Verbindung zwischen einem Pflegeheim, einer Sekundarschule und einem Gesundheitszentrum zu schaffen. Die Architektur des Gebäudes ist so konzipiert, dass sie eine optimale Integration in die natürliche Umgebung schafft und alle Etagenausgänge in die Aussenbereiche erschlossen sind.
© Fotos: gdap architectes sàrl, Genève
© Rendering: gdap architectes sàrl, Genève
© Visualisierung: gdap architectes sàrl, Genève
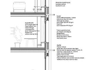
Die Konstruktion des Pflegeheims war in Holzbauweise vorgesehen. Die Fassade bestand aus vorgefertigten Fichtenholzelementen mit mineralischer Dämmung, die Fenster aus laminiertem Fichtenholz mit eloxierter Aluminiumverkleidung. Dämmung und Verglasung erfüllten hohe energetische Anforderungen. Das Dach war extensiv begrünt und mit Photovoltaik ausgestattet.
Eine zentrale Herausforderung lag in der Einbettung in das stark geneigte Gelände. Wege und Zugänge wurden so geplant, dass die Steigung von 6 % nicht überschritten wurde. Zudem wurde diskutiert, eine Anhöhe zu entfernen, um eine grössere Lichtung als Begegnungsraum zu schaffen.
Das Gebäude folgte einer kleeblattförmigen Struktur, die eine klare Organisation erlaubte: Im Erdgeschoss lagen Gemeinschaftsbereiche, ein Studentenwohnheim sowie Küche und Wäscherei. Die oberen Geschosse boten jeweils drei Wohneinheiten, verbunden über einen zentralen Kern mit Aufzügen und Pflegebereichen. Die Räume waren auf Individualität, Sicherheit und gute Belichtung ausgelegt und boten Zugang zu einem geschützten Aussenraum.
Das Projekt legte Wert auf ökologische Bauweise, funktionale Abläufe und eine Umgebung, die den Bedürfnissen der Bewohner entsprach. Die Verbindung aus Holzbau, sorgfältiger Landschaftsplanung und intergenerationellen Ansätzen machte es zu einem starken Beispiel für zeitgemässe Pflegeheime.
Ein herzlicher Dank geht an alle Beteiligten des Wettbewerbs – für den Einsatz, den Austausch und die starke gemeinsame Leistung. Rückblickend auf das Ergebnis bleibt die berechtigte Hoffnung, schon bald bei einem nächsten Projekt oder Verfahren gemeinsam überzeugen zu können.
| Verantwortungsbereich | Träger |
|---|---|
| Architektur | gdap architectes sàrl, Genève |
| Statik im Holzbau | Timbatec ingéneiurs bois SA, Delémont |
| Bauingenieur | Massivbau | 2M ingénierie civile sa, Yverdon-les-Bains |
| Landschaftsarchitektur | Studio Mint sàrl, Architecte paysagiste, Carrouge |
| Visualisierungen | gdap architectes sàrl, Genève |
